Lokal biurowy w prestiżowej lokalizacji – centrum Elbląga, ul. Kosynierów Gdyńskich
LOKALIZACJA:
Lokal znajduje się w ścisłym centrum Elbląga, przy ul. Kosynierów Gdyńskich, w bezpośrednim sąsiedztwie Szkoły Muzycznej oraz Urzędu Miejskiego. To miejsce o dużych możliwościach i świetnej rozpoznawalności, które zapewnia stały ruch w okolicy. W pobliżu znajdują się liczne punkty usługowe, sklepy, placówki edukacyjne oraz przystanki komunikacji miejskiej, co gwarantuje łatwy dojazd zarówno klientom, jak i pracownikom.
NIERUCHOMOŚĆ:
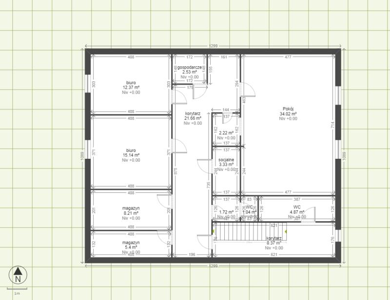
Lokal mieści się na drugim piętrze budynku, w którym na parterze działa żłobek. Składa się z trzech sal biurowych, sali konferencyjnej, dwóch pomieszczeń gospodarczych, toalety oraz pomieszczenia socjalnego. Łączna powierzchnia to ok. 126 m2. Dodatkowo do lokalu przynależy toaleta na korytarzu z niezależnym wejściem. Wejście do lokalu prowadzi z klatki schodowej, a przestrzeń można dowolnie zaaranżować pod potrzeby najemcy.
FINANSE:
Czynsz najmu: 1500 zł netto miesięcznie + opłaty za zużycie wody, energii elektrycznej i ogrzewania w sezonie grzewczym. Wymagana kaucja zwrotna w wysokości jednomiesięcznego czynszu. Przy wynajmie obowiązuje jednorazowe wynagrodzenie dla biura nieruchomości za czynności pośrednictwa.
Serdecznie zapraszamy do kontaktu i obejrzenia lokalu!
Powyższa oferta ma charakter informacyjny i nie stanowi oferty handlowej w rozumieniu art. 66 §1 Kodeksu Cywilnego.